Top banner

Stuehus

Ørsbjerg Skovvej 21, 5560 Aarup Danmark

Beskrivelse

Stuehuset

Stuehuset består af 2 etager, og kan kun lejes sammen med Længen, bortset fra dags- eller aftenarrangementer

I stueetagen er der 3 toiletter, heraf 1 med bad, Køkken, opbevaringsrum, samt spisestue. På førstesalen er der toilet, lederværelse med 4 senge, samt en sovesal med 14 pladser

Køkkenet indeholder følgende: Kogeø med 6 gasblus. Industriovn Dankok, Opvaskemaskine Opvask 1 - 4 min. Stor og lille kaffemaskine, Mikroovn, Elkedel, Foodprocessor, 2 køleskabe og en stor skabsfryser Service og Bestik til 100 personer Gryder og pander. Skåle og serveringsfade.

Stuehus_plantegning.001

Info Priser
Spiseplads til 76 personer
1 lederværelse med 4 senge og 1 sovesal med 14 madrasser
Alle hytterne er røgfri
3 km (SuperBrugsen, Gelsted)
8 borde/bænke sæt
100mbit / WIFI i alle rum
ca 15-20 biler

Ledighedsoversigt

Længen kun sammen med Stuehus

Øsrbjerg Skovvej 21, 5560 Ørsbjerg Danmark

Beskrivelse

Længen

Længen kan ikke lejes alene, men kun sammen med Stuehuset. Der er udover de 7 sovesale, et undervisningslokale med 12 borde og 60 stole. De 2 sovesale er også indrettet som gruppelokale med bord og 6 stole. Der er internet i hele hytten. Der er 2 toiletrum drenge/piger med bad, 2 toiletrum i mellemgangen, samt handicaptoilet også med bad. I alt 11 toiletter og 5 bade

Længen.001

 

 

Info Priser
100 sovepladser
7 køjerum
Alle hytterne er røgfri
3 km (SuperBrugsen, Gelsted)
100mbit / WIFI i alle rum
Kan bestilles
Ja
Offentlig shelter på grunden

Ledighedsoversigt

Tilbygning kun sammen med Stuehus og Længen

Ørsbjerg Skovvej 21, 5560 Årup Danmark

Beskrivelse

Tilbygningen

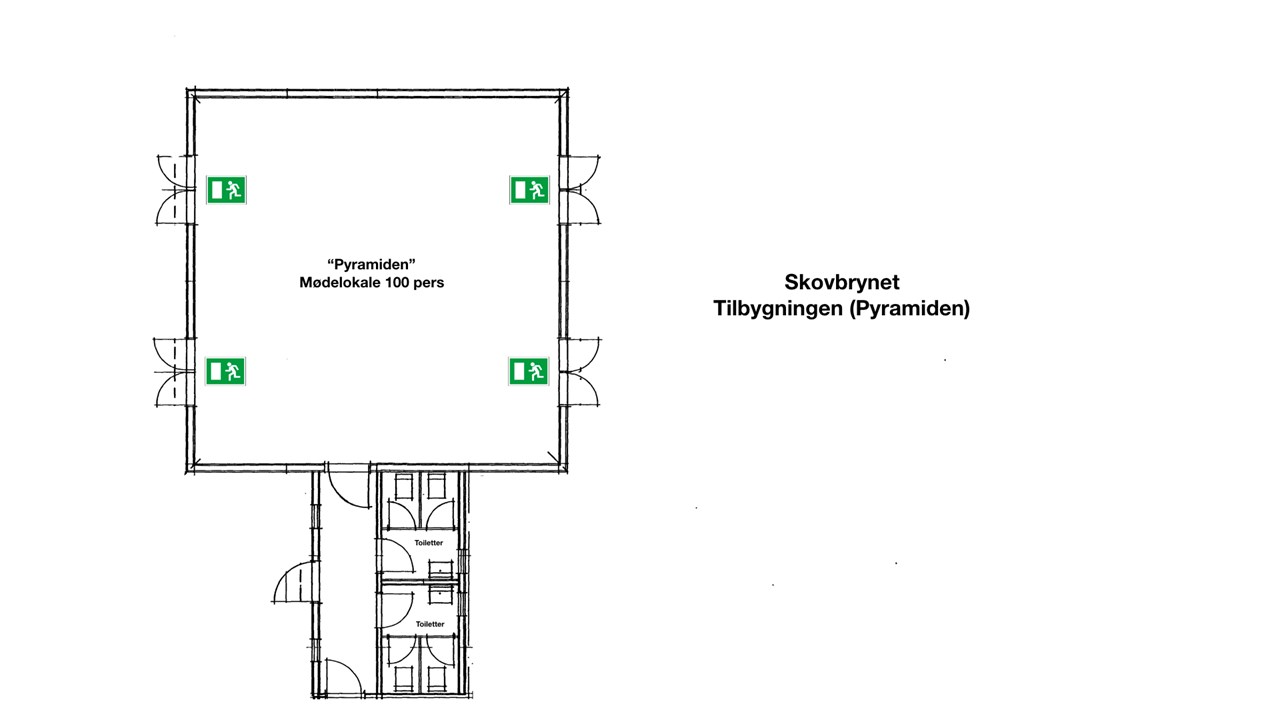
Tilbygningen eller Pyramiden som den oftest omtales som, er et dejligt stort lokale med plads til 90-100 personer til spisning, undervisning eller foredrag. I Pyramiden er der 23 borde og 95 stole. Der er internet i Pyramiden, samt udgang i begge sider til den naturskønne grund som Skovbrynet ligger på. Kan kun lejes sammen med Stuehuset. Skal lejes såfremt deltagerantallet overstiger 66 personer

Kan efter aftale benyttes til dags- og aftenmøder uden at bruge Stuehuset.

I Pyramiden er der installeret fast AV udstyr, bestående af dagslysprojektor, samt lærred og mindre højttalere. Der er VGA og HDMI tilslutning. Udstyret kan frit benyttes. 

 Pyramiden_plantegning

Info Priser
95 stole
100 m2
Kan bestilles

Ledighedsoversigt

Lejrpladsen

Ørsbjerg Skovvej 21, 5560 Årup Danmark

Beskrivelse

 Lejrpladserne

Lejrpladserne er afskærmet af hegn og skov. Der er på den store lejrplads, vand, el og internetforbindelse. Pladserne er velegnet både som patruljelejrplads, men også for hele grupper, eller store kurser.

Der er i 2017 bygget en toiletbygning på lejrpladsen, hvor der findes 5 toiletter. Et af disse fungerer som offentligt toilet for skovens gæster. 

Der er rafter og brænde på pladserne.


Lejrpladsen

Info Priser
200
Flere. Der må etables bålplads
Kan bestilles
Kan bestilles

Ledighedsoversigt